IMMOBILIENTREUHAND
Projektentwicklung
Projektvermittlung
Informationen
Kontakt
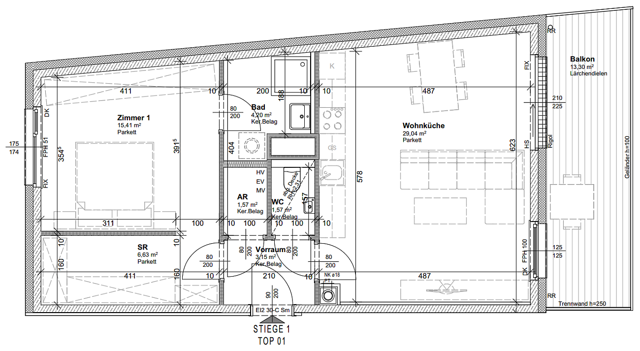
Stiege 1, TOP 1